Дом, Солнечная Показать на карте
Фут хиллс кп
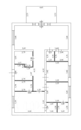
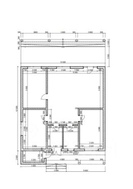
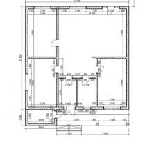
Продажа нового коттеджа рядом с Истрой.ПРЕИМУЩЕСТВА ДОМА:— Одноэтажный дом 162,3 кв. метров без внутренней отделки на участке 7.85 сот. возведен из газобетонных блоков размера 400, обшит утеплителем и отделан клинкерным кирпичом что обеспечивает современный внешний вид и максимальную теплоизоляцию.— Дом строили для себя на материалах не экономили, все параметры отвечают самым строгим требованиям к качеству.— По плану предусмотрено 2 спальни и большая кухня-гостиная. Возможно изменение планировки по желанию нового собственника.— Водоснабжение заведено в дом. Питьевая вода из скважины на участке.— Подведено электричество 15 кВт — В дом заведены трубы канализации, установлен септик ''Европлан''— Предусмотрены воздуховоды для вентиляции в доме.— Газ в ближайшей перспективе.— Отсутствие внутренней отделки позволяет проконтролировать качество уже возведенных конструкций и подведение всех внутренних коммуникаций, которые обычно скрыты под отделкой. — Остекление полностью установлено. — Покрытие крыши — мягкая кровля. — Участок огорожен забором.ПРЕИМУЩЕСТВА ПОСЕЛКА:— Развивающийся коттеджный поселок в 30 км от Москвы. — Поселок огорожен. Въезд через КПП. — Многие участки уже выкуплены, идет активное возведение и отделка домов, и обустройство общей территории. — До автобусной остановки 1,2 км. До ж/ст. Истра около 13 км. — На автомобиле выезд на ЦКАД и далее на Волоколамское, Новорижское, Пятницкое шоссе.Свободная продажа, 1 взрослый собственник.Показ в любое удобное время.Предоставляем услуги по одобрению ипотеки
162 м2
1 этаж
- Показать контакты
- Добавить в избранное
162 м2
1 этаж
13 400 000
82 563 /м2
