Складское помещение
Дачная, 8 стр. Показать на карте
Дачная, 8 стр. Показать на карте
Давыдовское
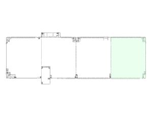
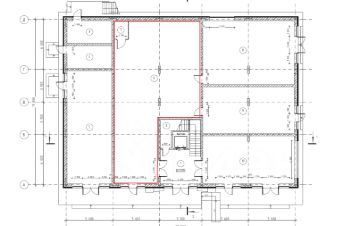
Уникальный номер помещения - 7268. Аренда помещения от собственника (без комиссии),Арендные каникулы, скидки и индивидуальные улучшения - все обсуждается,Помещение находится на огороженной и охраняемой территории, Назначение: Склад Транспортная доступность: Волоколамское ш., Новорижское (М-109) ш. Удаленность от МКАД: 40 км, Логистический парк в 40 километрах от МКАД, недалеко от трассы А107 (''Бетонка'') и ЦКАД, что обеспечивает быстрый доступ к любой части Москвы.Уникальное месторасположение на одной из наименее загруженных автомагистралей Москва-Рига (М9) на участке площадью 33 гектара СКЛАДСКОЙ КОМПЛЕКС КЛАСС А Бетонный пол с антипылевым покрытием Допустимая нагрузка на пол 7 т/м2 Рабочая высота 12 м Возможность хранения на мезонине Шаг колонн 12х18 м 1 док на 1000 м2 Выравнивающие площадки и уплотнительные контуры Спринклерная система пожаротушения и пожарная сигнализация Пристроенные офисные помещения Современная система телекоммуникаций Профессиональная управляющая компания Парковочные места для грузового и легкового автотранспорта Централизованная система безопасности, контроль доступа Системы отопления и вентиляцииТехнические характеристики: Свободная площадь: 17 934 м2, Температурный режим: Теплый, Этаж: 1, Высота потолка: 12 м, Промышленные ворота: 16 шт., Пол: Бетон-антипыль,Коммерческие условия: Арендная ставка: 725 руб/м.кв/месяц с НДС
17934 м2
- Показать контакты
- Добавить в избранное
17934 м2
13 002 150 /мес.
725 /м2
