Если цена в объявлении изменится, мы сразу сообщим вам об этом на электронную почту.
Нажимая «Подписаться», вы соглашаетесь с правилами.
продам дом, Рига лайф кп15 950 000 ₽
25 мая 2024
Дата публикации объявления
Обн. 25 мая 2024
Дата обновления объявления
136 605 ₽/м²
Чистая продажа
Термин "Чистая продажа" означает, что в квартире никто не прописан или
есть куда выписаться и вывезти вещи. Это лучший вариант для покупателя.
Вероятность срыва сделки минимальна.
Этажей1
Площадь участка6,46 соток
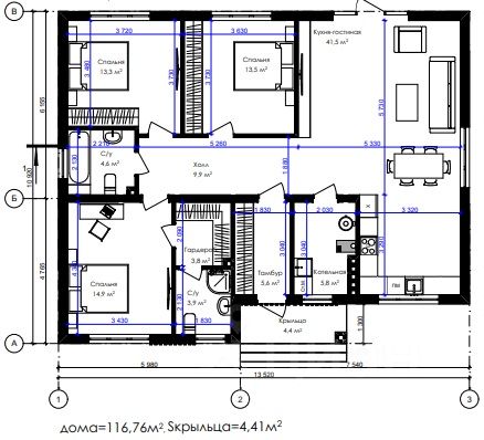
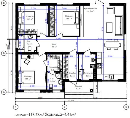
Общая площадь116,76 м2
Материал домакирпич
ЭлектричествоЕсть
Газоснабжениецентральное
Наша компания продает новый дом в коттеджном поселке ''Рига Лайф'' Поселок находится в 55 км от МКАДа по новорижскому шоссе.
Площадь дома 116,76 кв.м. на земельном участке 6,46 соток. ВАЖНО: - Стоимость в объявлении указана полностью за дом и земельный участок, без дополнительных платежей. ПЛАНИРОВКА: - тамбур,
- холл
- три спальные комнаты,
- гардеробная,
- два санузла,
- кухня - гостиная,
- котельная.
Наша компания продает новый дом в коттеджном поселке ''Рига Лайф'' Поселок находится в 55 км от МКАДа по новорижскому шоссе.
Площадь дома 116,76 кв.м. на земельном участке 6,46 соток. ВАЖНО: - Стоимость в объявлении указана полностью за дом и земельный участок, без дополнительных платежей. ПЛАНИРОВКА: - тамбур,
- холл
- три спальные комнаты,
- гардеробная,
- два санузла,
- кухня - гостиная,
- котельная.
КОММУНИКАЦИИ: - Газ - Электроэнергия - Водоснабжение (скважина) О ПОСЕЛКЕ: Инфраструктура этого поселка продумана таким образом, что каждый будет жить в комфорте не только в своем доме, но и за его пределами: - Закрытая забором территория, - Имеется два заезда и выезда, - Асфальтированная и освещенная дорога, - Детская площадка на территории поселка,
-Спортивная площадка, - Сцена под открытым небом, - Клубный дом, внутри которого будет коворкинг, фитнес зал, кафе, и многое другое.
- Парк и зона отдыха на природе,
-Своя фотозона
В Нашем поселке дома будут построены из полистиролбетона. Дома из полистиролбетона - это: - Долговечность: Срок эксплуатации выше, чем у кирпича и бетона. Расчетный срок службы домов из полистиролбетона составляет свыше 100 лет. - Влагостойкость: Процент водопоглощения до 6% (в 8 - 10 раз меньше чем у газобетона) - Пожаробезопасность: Не горит. При пожаре поверхностные гранулы полистиролбетона испаряются, а тление и пламя отсутствуют. Класс горючести - НГ - Теплоизоляция: Снижение энергозатрат. Теплопровность 0,1 - 0, 14 Вт/м С. Стена 300 мм из полистиролбетона = 2,5 м кирпичной кладки - Шумоизоляция: Стена 300 мм гасит звук до 100 дБ (шум работающего двигателя грузовой машины) - Энергоэффективность: Дом будет остывать 2-3 дня, если отключить отопление при -20 С (коэффициент теплопроводности во время эксплуатации 0,115 Вт/м С) - Экологичность: В составе блоков цемент, вода и пищевой полистирол - Скорость сборки: Монтаж дома составляет 2-3 дня ПРЕИМУЩЕСТВА ПОКУПКИ ДОМА В НАШЕЙ КОМПАНИИ: - Наша компания строит дома уже более 12 лет, - Работаем только с проверенными поставщиками строительных материалов, сохраняем все паспорта и допуски материалов, - Гарантия на наши дома 8 лет!, - Свой юрист в штате, соблюдаем все стандарты и юридические нормативы муниципальных учреждений, - Дом подходит под ипотеку и все льготные программы РФ, возможно использовать материнский капитал. ДОКУМЕНТЫ: - Весь перечень документов готов к продаже, можем предоставить на ознакомление. Звоните, наши менеджеры, с удовольствием, в удобное для Вас время, проведут экскурсию по нашему восхитительному поселку, либо по телефону ответят на все оставшиеся у Вас вопросы. Ваша строительная компания - ТопДом!
Добавьте объявление в избранное чтобы не потерять.
Нас ищут по следующим запросам: Дом из кирпича, кирпичный дом, построить кирпичный дом, кирпичный дом под ключ, дом из кирпича цена, стоимость кирпичного дома под ключ, монолитный дом, построить монолитный дом, монолитный дом под ключ, дом из монолита цена, стоимость монолитного дома.