Если цена в объявлении изменится, мы сразу сообщим вам об этом на электронную почту.
Нажимая «Подписаться», вы соглашаетесь с правилами.
продам 2-к, Генерала Белобородова проспект, 348 600 000 ₽
15 сен 2024
Дата публикации объявления
Обн. 5 янв
Дата обновления объявления
11
Количество просмотров (+ просмотры за сегодня)
134 585 ₽/м²
Чистая продажа
Термин "Чистая продажа" означает, что в квартире никто не прописан или
есть куда выписаться и вывезти вещи. Это лучший вариант для покупателя.
Вероятность срыва сделки минимальна.
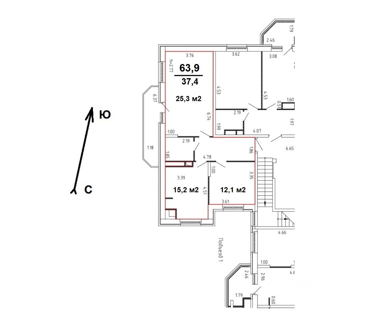
Продаётся новая большая 2к квартира с отделкой и огромным балконом в городе Истра. Адрес: г. Истра, проспект Генерала Белобородова, дом 34. Уникальная планировка квартиры позволяет разделить гостиную на две комнаты.
Квартира расположена на высоком 4 этаже, нового, кирпичного дома. Общая площадь квартиры 63,9 м2, жилая 37,4 м2, кухня 15,2 м2, совмещенный с/у и просторный балкон. Высокие оштукатуренные потолки 2,77 м.
Квартира с ремонтом от застройщика, вся сантехника подключена. В квартире выполнено индивидуальное газовое отопление, установлен котел Bosch. В квартире никогда не проживали.
Дом расположен в удивительно комфортном и позитивном для жизни месте. Микрорайон очень тихий, рядом протекает река, в шаговой доступности лес.
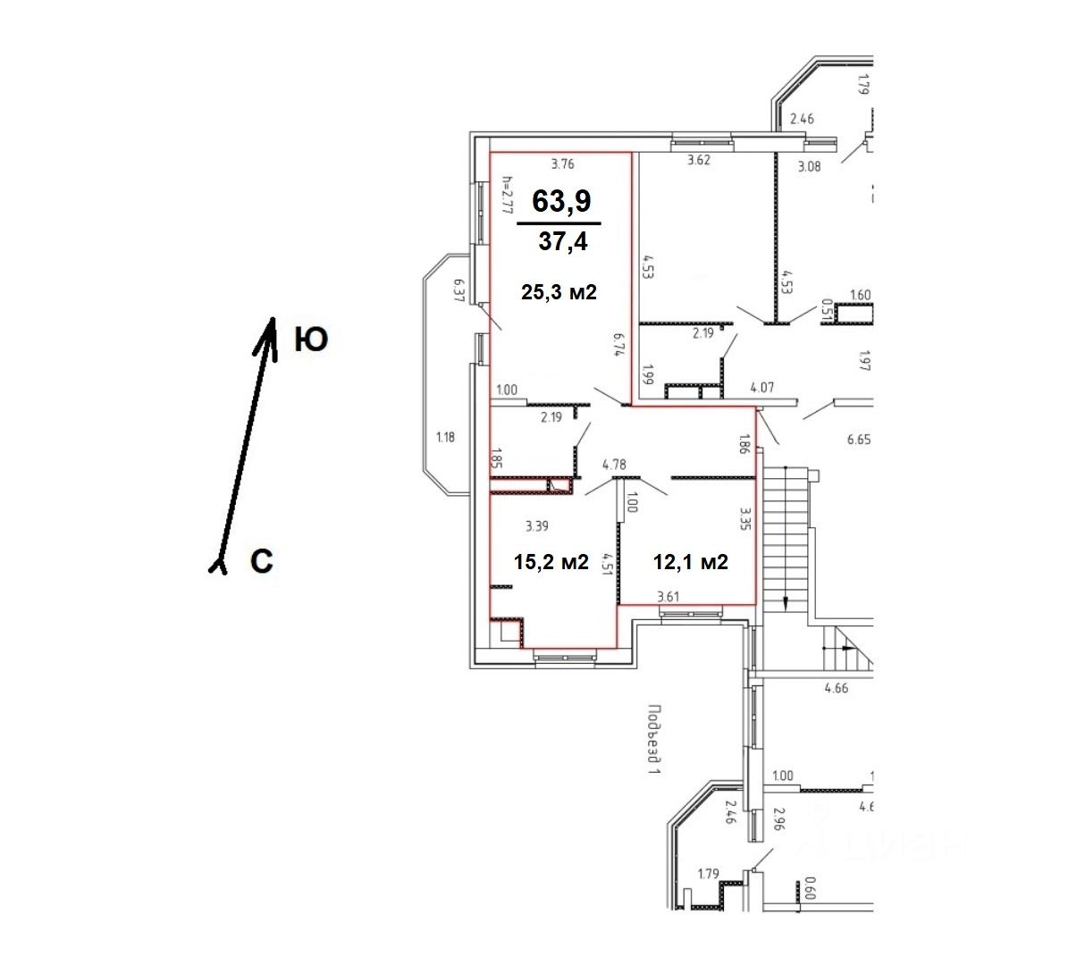
Продаётся новая большая 2к квартира с отделкой и огромным балконом в городе Истра. Адрес: г. Истра, проспект Генерала Белобородова, дом 34. Уникальная планировка квартиры позволяет разделить гостиную на две комнаты.
Квартира расположена на высоком 4 этаже, нового, кирпичного дома. Общая площадь квартиры 63,9 м2, жилая 37,4 м2, кухня 15,2 м2, совмещенный с/у и просторный балкон. Высокие оштукатуренные потолки 2,77 м.
Квартира с ремонтом от застройщика, вся сантехника подключена. В квартире выполнено индивидуальное газовое отопление, установлен котел Bosch. В квартире никогда не проживали.
Дом расположен в удивительно комфортном и позитивном для жизни месте. Микрорайон очень тихий, рядом протекает река, в шаговой доступности лес. Малоэтажная застройка, просторные дворы и множество детских площадок создают атмосферу беззаботности и простого семейного счастья.
Во дворах много парковочных мест, в шаговой доступности новая, современная школа, а детская и взрослая поликлиника находятся поблизости. Сетевые магазины в шаговой доступности, а совсем недалеко расположены Гипермаркет Лента и Леруа Мерлен.
Это идеальное решение для жизни в тихом и спокойном районе Истры.
Отличная транспортная доступность: До цента Истры 5 минут на авто, До МКАДа 46 км по Новорижскому или Волоколамскому шоссе.
Один собственник, без обременений, полная стоимость в договоре. Можно купить в ипотеку.