Если цена в объявлении изменится, мы сразу сообщим вам об этом на электронную почту.
Нажимая «Подписаться», вы соглашаетесь с правилами.
продам коттедж, Мира, 6124 900 000 ₽
13 дек 2024
Дата публикации объявления
Обн. 15 июля 2025
Дата обновления объявления
4
Количество просмотров (+ просмотры за сегодня)
122 902 ₽/м²
Чистая продажа
Термин "Чистая продажа" означает, что в квартире никто не прописан или
есть куда выписаться и вывезти вещи. Это лучший вариант для покупателя.
Вероятность срыва сделки минимальна.
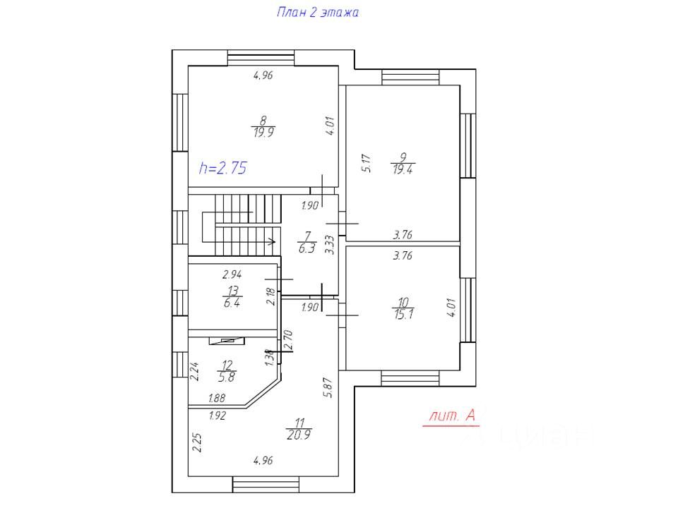
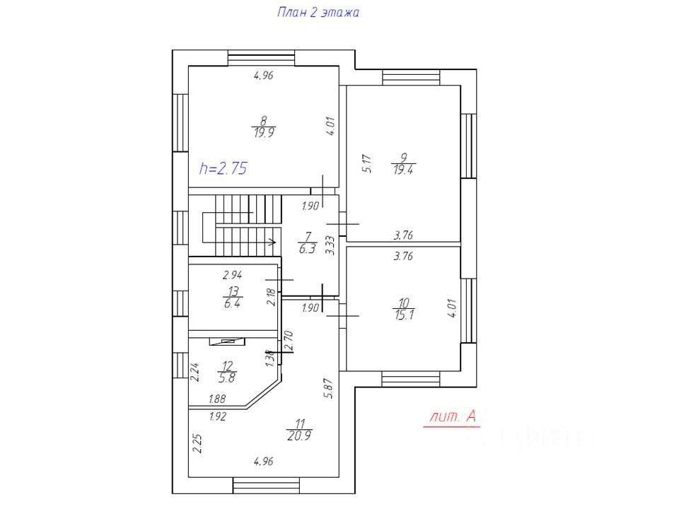
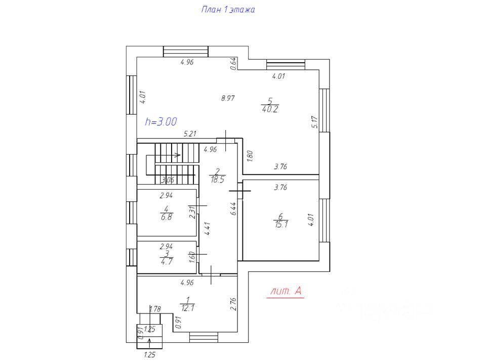
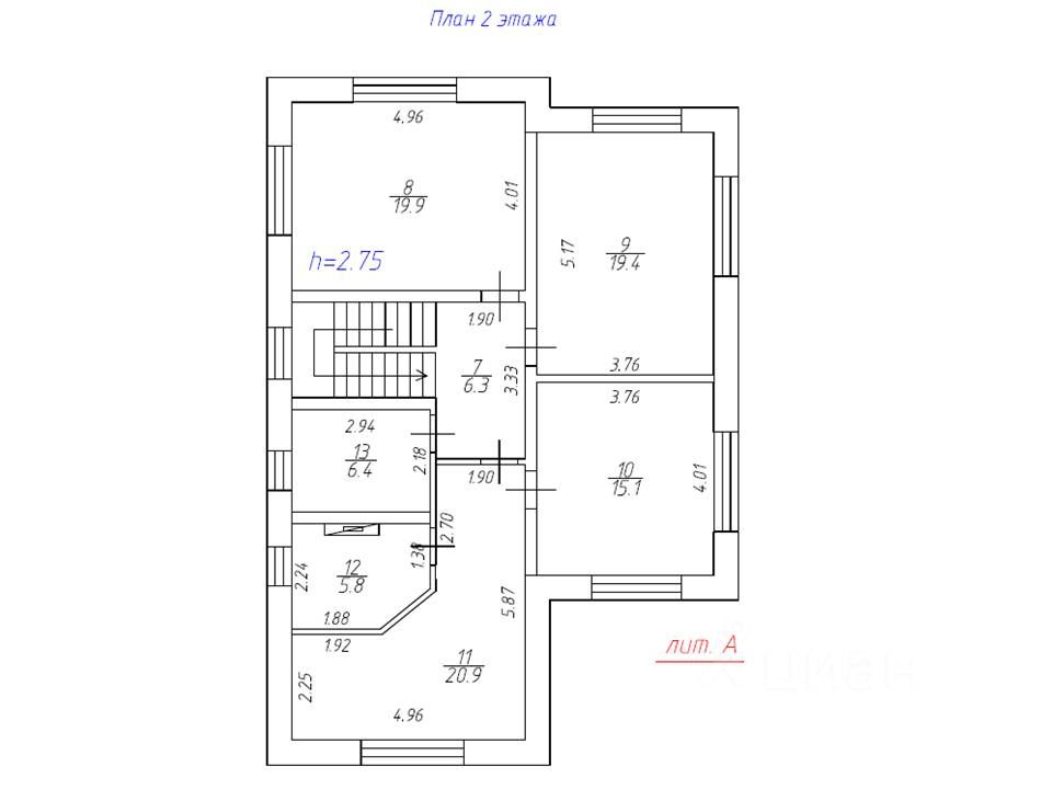
Этажей2
Площадь участка10 соток
Общая площадь202,6 м2
Материал домакирпич
ЭлектричествоЕсть
Газоснабжениецентральное
ВРЕМЯ ПОКУПАТЬ ! Интересное предложение ЦЕНА - КАЧЕСТВО! Новый, капитальный и ОЧЕНЬ уютный коттедж. ПОД ОТДЕЛКУ . В доме идёт отделка, Цена будет повышаться. Земли населённых пунктов, ИЖС. Охраняемый посёлок. Дом-крепость. Несущие стены и межкомнатные перегородки - кирпич (марка 300). Фасад - клинкерный кирпич. Мощный фундамент. Монолитные перекрытия на все уровни (включая чердак). Высокие потолки (1 этаж- 3,2м, 2 этаж-3м, чердак- 4м). ГАЗ (котёлгазовый в цене), вода (центральный водопровод), автономная канализация (планируется установка), электричество 15 кВт (3 фазы). В посёлке есть скоростной интернет (сейчас разводится по дому). 1 этаж: тамбур, холл, кухня-столовая переходящая в гостиную. Спальня (или кабинет), с/узел, бойлерная (согласованный ГАЗОВЫЙ КОТЁЛ входит в стоимость).
ВРЕМЯ ПОКУПАТЬ ! Интересное предложение ЦЕНА - КАЧЕСТВО! Новый, капитальный и ОЧЕНЬ уютный коттедж. ПОД ОТДЕЛКУ . В доме идёт отделка, Цена будет повышаться. Земли населённых пунктов, ИЖС. Охраняемый посёлок. Дом-крепость. Несущие стены и межкомнатные перегородки - кирпич (марка 300). Фасад - клинкерный кирпич. Мощный фундамент. Монолитные перекрытия на все уровни (включая чердак). Высокие потолки (1 этаж- 3,2м, 2 этаж-3м, чердак- 4м). ГАЗ (котёлгазовый в цене), вода (центральный водопровод), автономная канализация (планируется установка), электричество 15 кВт (3 фазы). В посёлке есть скоростной интернет (сейчас разводится по дому). 1 этаж: тамбур, холл, кухня-столовая переходящая в гостиную. Спальня (или кабинет), с/узел, бойлерная (согласованный ГАЗОВЫЙ КОТЁЛ входит в стоимость). 2 этаж - холл, 3 спальни, 2с/узла. ДВА этажа - это 202,6м2. ПЛЮС ещё 120м2 - ЧЕРДАК свободной планировки с высокими (4м) потолками. В объявлении цена на объект, в том состоянии как есть, 24,9 млн рублей включает огороженный УЧАСТОК, стоящий на кадастре, и ДОМ, под отделку c заведённым газом, капитальный, стоящий на кадастре. Газ заведён в дом и подключён. Вода, электричество. В доме уже РАЗВЕДЕНЫ тёплые полы. и залита стяжка. На ВСЕХ УРОВНЯХ. Электричество полностью разведено по дому. Уникальная возможность доделать отделку ''под себя''. ВОЗМОЖНА дальнейшая отделка под ключ..(несколько фото в рекламе...). Цена ПОД КЛЮЧ планируем 30 млн со всеми коммуникациями, отделанными мрамором лестницами, тёплыми (водяными) полами плюс радиаторами, полы 1 этаж - керамогранит и ламинат - на втором этаже и мансарде, стены - декоративная штукатурка и покраска, розетки, двери премиум, бойлерная под ключ, навес на 2-3 авто с автоматическими воротами, брусчатка, газон,,,,, В настоящее время в доме ведётся отделка. Цена по мере отделки будет увеличиваться. Охраняемый коттеджный посёлок, разумные платежи. Красивое декоративное освещение и сотни сосен вдоль улиц. Спортивная и детская площадки, уличные тренажёры. Земли населённых пунктов, ИЖС. Рядом лес и озеро с платной рыбалкой. Магазины, почта, кафе, аптека, парикмахерская - в пешей доступности. Хорошая транспортная логистика. Возможен подъезд по Новорижскому, Волоколамскому, Ленинградскому и Пятницкому шоссе. Великолепная инфраструктура города Истра (7 км), недалеко Парк Отель Огниково. с бассейном и гимназией. От собственника. Документы готовы к сделке. Оперативный показ.