Если цена в объявлении изменится, мы сразу сообщим вам об этом на электронную почту.
Нажимая «Подписаться», вы соглашаетесь с правилами.
продам коттедж, Рига Парк кп38 500 000 ₽
30 апр 2025
Дата публикации объявления
Обн. 9 сен
Дата обновления объявления
1
Количество просмотров (+ просмотры за сегодня)
154 000 ₽/м²
Чистая продажа
Термин "Чистая продажа" означает, что в квартире никто не прописан или
есть куда выписаться и вывезти вещи. Это лучший вариант для покупателя.
Вероятность срыва сделки минимальна.
Этажей2
Площадь участка6,2 соток
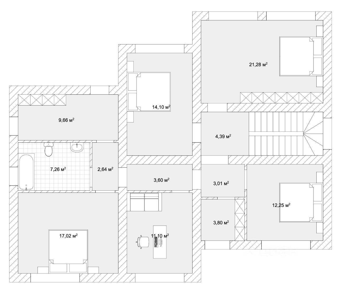
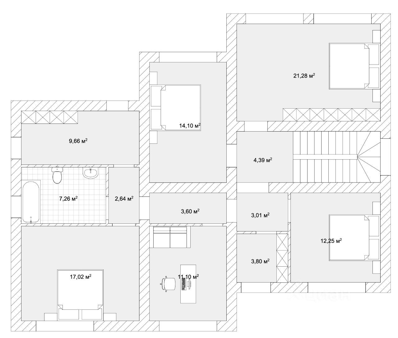
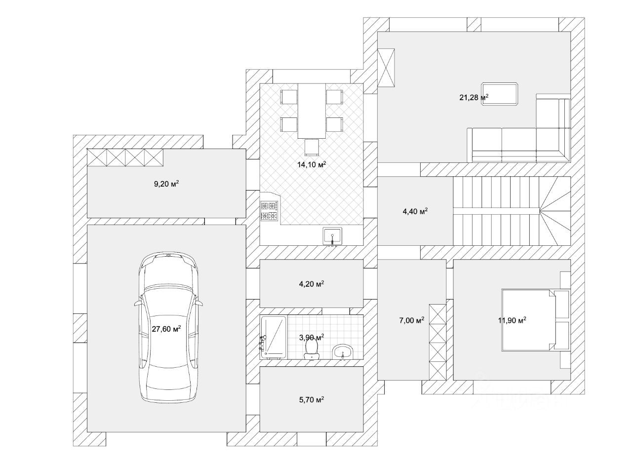
Общая площадь250 м2
Материал домабетонные блоки
ЭлектричествоЕсть
Газоснабжениецентральное
КП ''Рига парк''. Новый, современный коттедж площадью 250 кв. м в стиле Хайтек под отделку, в строго охраняемом поселке на берегу реки Истра в окружении леса. Высокие потолки, панорамное остекление, удобная планировка. Использованы только качественные дизайнерские строительные материалы с соблюдением всех ГОСТов и СНИПов. Стены - керамзитобетонный блок, фундамент - монолитная плита 300 мм, перекрытия - ЖБИ плиты, фасад - утеплён. Возможна отделка вайтбокс или под ключ. Эксплуатируемая плоская кровля полностью гидроизолирована и оснащена системой отвода воды. 1 этаж: прихожая, гардеробная, просторная кухня - гостиная с выходом на террасу, гостевая спальня, санузел, постирочная, котельная, гараж. 2 этаж: 3 уютные спальни, 2 санузла, 2 гардеробные.
КП ''Рига парк''. Новый, современный коттедж площадью 250 кв. м в стиле Хайтек под отделку, в строго охраняемом поселке на берегу реки Истра в окружении леса. Высокие потолки, панорамное остекление, удобная планировка. Использованы только качественные дизайнерские строительные материалы с соблюдением всех ГОСТов и СНИПов. Стены - керамзитобетонный блок, фундамент - монолитная плита 300 мм, перекрытия - ЖБИ плиты, фасад - утеплён. Возможна отделка вайтбокс или под ключ. Эксплуатируемая плоская кровля полностью гидроизолирована и оснащена системой отвода воды. 1 этаж: прихожая, гардеробная, просторная кухня - гостиная с выходом на террасу, гостевая спальня, санузел, постирочная, котельная, гараж. 2 этаж: 3 уютные спальни, 2 санузла, 2 гардеробные. Коммуникации: электричество 15 кВт, магистральный газ, центральные водоснабжение и канализация заведены в дом. Ухоженный участок 6,2 сотки, газон. В продаже несколько аналогичных домов с разными планировками и ценами. Уличное освещение периметра дома. Хорошая транспортная доступность, престижное направление, обжитой поселок, идеально подойдет для постоянного проживания и отдыха. На территории поселка: р. Истра, пляж, лес, множество прогулочных зон и детских площадок. Рядом конно - спортивный комплекс, фитнес центр с катком, ТЦ, Аутлет, Покровский СПА -цент. Инфраструктура Павловской. Удобный выезд на Новорижское шоссе. Эксплуатационный платеж в поселке 9000 рублей в месяц, возможна льготная семейная и IТ-ипотека. С уважением Александр.