сдам складское помещение, МПСК Ориентир-Запад тер., 344 037 000 ₽ в месяц
2 июля 2025
Дата публикации объявления
Обн. сегодня
Дата обновления объявления
2
Количество просмотров (+ просмотры за сегодня)
1398 ₽/м² в месяц
Параметры
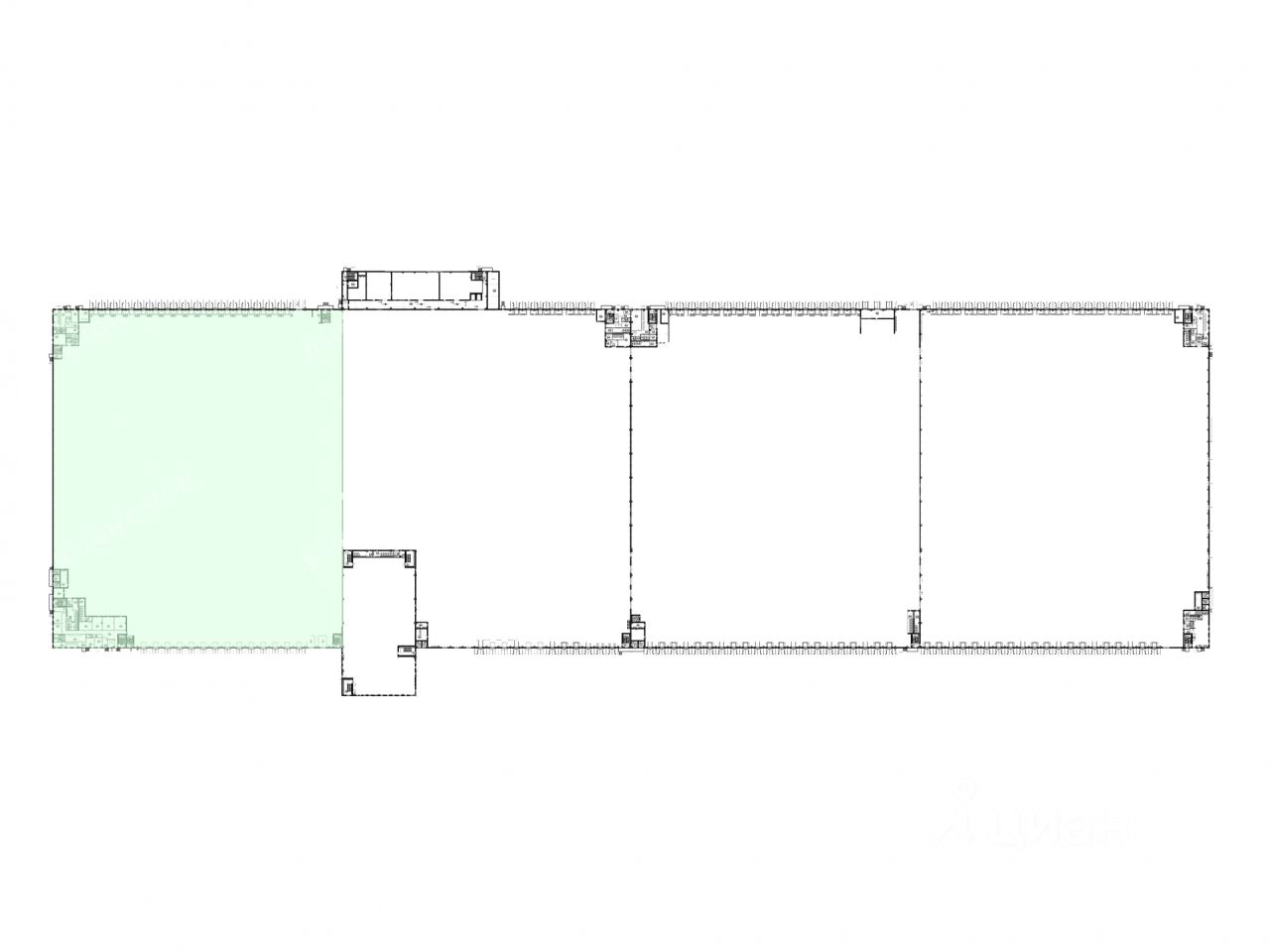
Общая площадь31500 м2
Этаж1
Год постройки2021
Складское помещение 31 500 кв. м в ''Ориентир Запад''.
Направление: Запад. Шоссе: Новорижское. Расстояние от МКАД: 40 км.
Характеристики: - Класс: A, - Ворота: Ворота, Доки, - Тип склада: Сухой склад, - Высота потолков: 12.9 м, - Нагрузка на пол: 9 т/ кв.м, - Система пожаротушения: Спринклерная, - Тип пола: С антипылевым покрытием, - Пожарная сигнализация: Да, - Уровень пола: 1.2 м, - Шаг колонн: 12x24 м.
Арендная ставка: 16 774.8 руб./кв. м в год.
Финансовые условия: - В стоимость включено: OPEX, НДС, - Оплачивается отдельно: Коммунальные услуги, Электроэнергия, - Налог: Включая НДС.
Без комиссии и скрытых платежей для арендатора.
Складское помещение 31 500 кв. м в ''Ориентир Запад''.
Направление: Запад. Шоссе: Новорижское. Расстояние от МКАД: 40 км.
Характеристики: - Класс: A, - Ворота: Ворота, Доки, - Тип склада: Сухой склад, - Высота потолков: 12.9 м, - Нагрузка на пол: 9 т/ кв.м, - Система пожаротушения: Спринклерная, - Тип пола: С антипылевым покрытием, - Пожарная сигнализация: Да, - Уровень пола: 1.2 м, - Шаг колонн: 12x24 м.
Арендная ставка: 16 774.8 руб./кв. м в год.
Финансовые условия: - В стоимость включено: OPEX, НДС, - Оплачивается отдельно: Коммунальные услуги, Электроэнергия, - Налог: Включая НДС.
Без комиссии и скрытых платежей для арендатора.
Готовы оперативно организовать просмотр в удобное время, предоставить PDF-презентацию и план.
Точное местоположение объекта можно найти по данным координатам: 55.837580,36.877660