Если цена в объявлении изменится, мы сразу сообщим вам об этом на электронную почту.
Нажимая «Подписаться», вы соглашаетесь с правилами.
продам дом, НП ОЗУ Колибри тер., 812 300 000 ₽
18 июля 2025
Дата публикации объявления
Обн. 15 авг
Дата обновления объявления
43 929 ₽/м²
Чистая продажа
Термин "Чистая продажа" означает, что в квартире никто не прописан или
есть куда выписаться и вывезти вещи. Это лучший вариант для покупателя.
Вероятность срыва сделки минимальна.
Этажей2
Площадь участка18 соток
Общая площадь280 м2
Материал домакирпич
ЭлектричествоЕсть
Код объекта: 1236221. Продается дом с ухоженным участком. Вокруг прекрасная экология - до леса 100 м, до реки Истра 400 м, до Истринского водохранилища 1 км.
КОММУНИКАЦИИ: отопление - установлен твердотопливный котел с чугунными радиаторами, вода заведена из колодца (24 кольца), канализация - два переливных колодца, электричество 15 кВт, печь, камин.
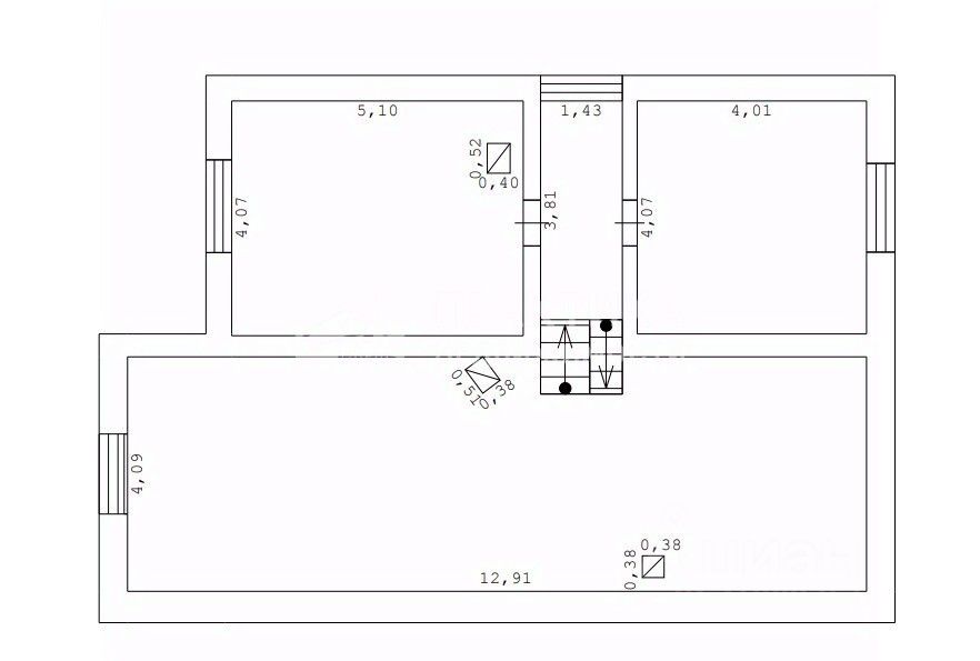
ПЛАНИРОВКА: 1 этаж - большая веранда с панорамными окнами, гостиная с камином, кухня с печкой, спальная комната, котельная, сантехническая комната, встроенный гараж/мастерская 20 кв.м. 2 этаж - две спальные комнаты.
Код объекта: 1236221. Продается дом с ухоженным участком. Вокруг прекрасная экология - до леса 100 м, до реки Истра 400 м, до Истринского водохранилища 1 км.
КОММУНИКАЦИИ: отопление - установлен твердотопливный котел с чугунными радиаторами, вода заведена из колодца (24 кольца), канализация - два переливных колодца, электричество 15 кВт, печь, камин.
ПЛАНИРОВКА: 1 этаж - большая веранда с панорамными окнами, гостиная с камином, кухня с печкой, спальная комната, котельная, сантехническая комната, встроенный гараж/мастерская 20 кв.м. 2 этаж - две спальные комнаты. мансарда - обустроенное жилое пространство, 52 кв.м.
УЧАСТОК: прямоугольной формы, ровный, сухой. По периметру огорожен забором, с фронтальной стороны установлен кованный забор. На участке расположена баня 15 м2, с погребом. Высажены декоративные и плодовые деревья, кустарники, разбиты цветники. С тыльной стороны участка имеется второй выход на улицу, с персональной парковкой на два м/места.
ИНФРАСТРУКТУРА: в пешей доступности расположены магазин ''Перекрёсток'', салон красоты, торговый центр, Валдберрис.
ТРАНСПОРТ: до ж/станции ''Истра'' Рижского направления на регулярном автобусе 15 минут.
До МКАД 47 км по Волоколамскому или Новорижскому шоссе.
До города Истра 9 км.
Без обременений, быстрый выход на сделку. Показ по предварительной договоренности.
Для покупателя: - юридическое сопровождение сделки - одобрение ипотеки по сниженной ставке