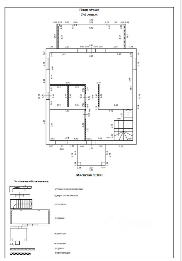
Продаётся новый дом. Общая площадь 191 м2. Два этажа. На первом этаже: Кухня-гостиная с выходом на веранду, спальная комната, санузел, на втором этаже: три спальные комнаты, санузел. Готовая бетонная лестница. Из коммуникаций: скважина, септик, электричество. Газ в перспективе 1-1,5 года. Участок ровный квадратной формы.
Один взрослый собственник. Показы заранее по договорённости.





































