Если цена в объявлении изменится, мы сразу сообщим вам об этом на электронную почту.
Нажимая «Подписаться», вы соглашаетесь с правилами.
продам таунхаус, Исаково, 957 500 000 ₽
25 июля
Дата публикации объявления
Обн. сегодня
Дата обновления объявления
9
Количество просмотров (+ просмотры за сегодня)
Топ
Спецпредложение
Выделение цветом
Турбо x2
Турбо x4
Турбо x8
196 045 ₽/м²
Чистая продажа
Термин "Чистая продажа" означает, что в квартире никто не прописан или
есть куда выписаться и вывезти вещи. Это лучший вариант для покупателя.
Вероятность срыва сделки минимальна.
Этажей2
Площадь участка11,1 соток
Общая площадь293,3 м2
ЭлектричествоЕсть
Газоснабжениецентральное
Дом под отделку в коттеджном посёлке ''Павловы Озёра''. Коттедж в современном стиле ''Barnhouse''. Новый дом с участком и готовой инфраструктурой теперь не мечта, а реальность! До озера 100 метров!
Коттедж: •Кадастровый номер: 50:08:0050253:2645 •Строительный номер: 9-009 •Площадь: 293,3 кв.
Дом под отделку в коттеджном посёлке ''Павловы Озёра''. Коттедж в современном стиле ''Barnhouse''. Новый дом с участком и готовой инфраструктурой теперь не мечта, а реальность! До озера 100 метров!
Коттедж: •Кадастровый номер: 50:08:0050253:2645 •Строительный номер: 9-009 •Площадь: 293,3 кв. м
Участок: •Кадастровый номер: 50:08:0050253:2635 •Площадь: 5,65 сотки •Категория земель: земли населенных пунктов •Вид разрешенного использования: для ИЖС
Соседний участок, доступный к покупке вместе с лотом: •Кадастровый номер: 50:08:0050253:2636 •Площадь: 5,45 сотки •Категория земель: земли населенных пунктов •Вид разрешенного использования: для ИЖС
Архитектура и инженерия: •Современный фасад с подсветкой, отделкой планкеном из лиственницы и клинкерным кирпичом •Утепленная фальцевая кровля из оцинкованной стали •Внешние и внутренние стены выполнены из керамического блока Porotherm 44 •Свайно-ростверковый фундамент
Комплектация ''Тёплый контур'': •Отштукатуренная котельная •Алюминиевые двухкамерные стеклопакеты с УФ-напылением •Готовый участок 5 соток с газоном и живой изгородью из туй •Отмостка с проложенной ливневой канализацией и брусчаткой по периметру дома •Все коммуникации заведены в дом, оформлено разрешение на ввод газа
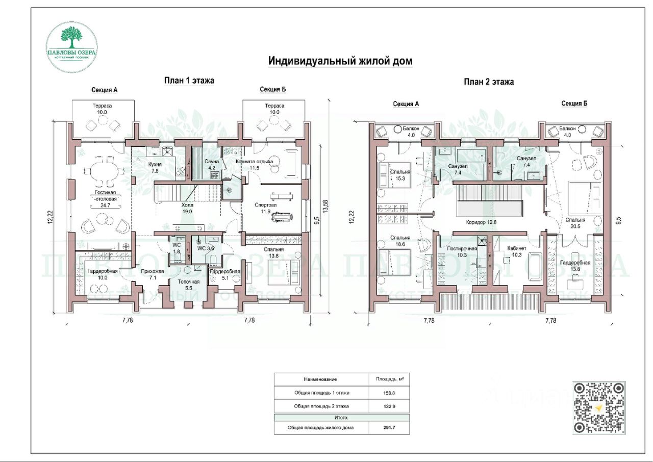
Удобная планировка: Первый этаж: •При входе в дом расположен блок прихожей (7 кв. м) с гардеробной (10 кв. м), гостевым санузлом (2 кв. м) и котельной (5.5 кв. м). •Пройдя далее, попадаем в просторный холл (19 кв. м), плавно перетекающий в общую зону первого этажа светлую кухню-гостиную (32.5 кв. м) с выходом на террасу. •В другом крыле приватной зоне расположена гостевая спальня (13.8 кв. м) с собственным санузлом (3.6 кв. м) и гардеробной (5.1 кв. м). •В этой части дома также разместился спортзал (12 кв. м), сауна (4.2 кв. м) с комнатой отдыха (11.5).
Второй этаж: •Холл (12.8 кв. м) делит пространство на два крыла. •Правое крыло занимает мастер-блок со спальней (20.5 кв. м) с выходом на террасу, санузлом (7.4 кв. м), гардеробной (13.8 кв. м) и кабинетом (10.3 кв. м). •В левом крыле расположились две дополнительные спальни (18.6 и 15.3 кв. м), общий санузел (7.4 кв. м) и постирочная (10.3 кв. м).
В Павловых Озёрах предусмотрены все необходимые условия для проживания: •Строгая охрана •Широкие дороги, мощеные брусчаткой •Детские и спортивные площадки •Озеро с пляжем •Прогулочные зоны и спортивный кластер •Высокоразвитая инфраструктура района •Отличная транспортная доступность
Готовый дизайн-проект в подарок! Количество объектов ограничено.