Коттеджный поселок Алексино предлагает современный дом для постоянного проживания на участке 16 соток. Объект расположен на охраняемой территории с видеонаблюдением, вблизи города, что обеспечивает удобную транспортную доступность. Дом построен по индивидуальному проекту с продуманной планировкой, отличается высоким качеством материалов и соответствует всем строительным нормам.
Здание выполнено из газоблока Bonolit D500 с толщиной стен 400 мм, что гарантирует тепло- и звукоизоляцию. Фундамент — ростверк на буронабивных сваях глубиной 3 метра, перекрытия — железобетонные плиты толщиной 250 мм. Крыша покрыта металлочерепицей Grand Line 0,5 мм с утеплением минеральной ватой 200 мм и надежной гидроизоляцией.
Номер в базе: 846649.
Коттеджный поселок Алексино предлагает современный дом для постоянного проживания на участке 16 соток. Объект расположен на охраняемой территории с видеонаблюдением, вблизи города, что обеспечивает удобную транспортную доступность. Дом построен по индивидуальному проекту с продуманной планировкой, отличается высоким качеством материалов и соответствует всем строительным нормам.
Здание выполнено из газоблока Bonolit D500 с толщиной стен 400 мм, что гарантирует тепло- и звукоизоляцию. Фундамент — ростверк на буронабивных сваях глубиной 3 метра, перекрытия — железобетонные плиты толщиной 250 мм. Крыша покрыта металлочерепицей Grand Line 0,5 мм с утеплением минеральной ватой 200 мм и надежной гидроизоляцией. Окна — энергосберегающие алюминиевые системы Alutech W72 с мультифункциональными стеклами, обеспечивающими высокую теплоизоляцию и возможность панорамного обзора.
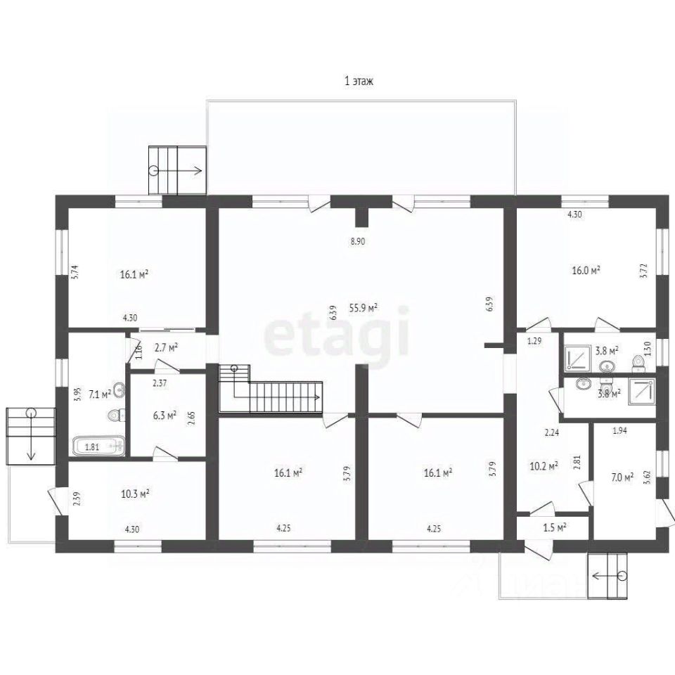
Планировка включает просторную гостиную со вторым светом, что создает ощущение простора и наполняет дом естественным светом.Дополнительное пространство предоставляет подвал площадью 45 м² с высотой потолков 2,1 метра, который можно использовать как кладовую, мастерскую или зону хранения. В доме установлены металлические входные двери, проведено электричество 15 кВт.
Участок огорожен прочным металлическим забором с оцинкованными ламелями толщиной 0,7 мм и оснащен откатными воротами. Газ подведен к границе участка, что упрощает подключение. В наличии остались строительные материалы, включая газоблоки, которые можно использовать для возведения гостевого дома.
Объект требует завершающей отделки и подвода коммуникаций, что позволяет адаптировать его под индивидуальные предпочтения. Все этапы строительства задокументированы, работы выполнены строго по проекту с соблюдением ГОСТ и СНиП.
Юридическое сопровождение сделки гарантирует безопасность и прозрачность покупки. Возможна ипотека от банков-партнеров с выгодными условиями. Код пользователя: 120787