Свободная продажа 2к квартиры рядом со станцией Истра.
Адрес: Московская область, Истринский район, г. Истра, ул. Юбилейная 4.
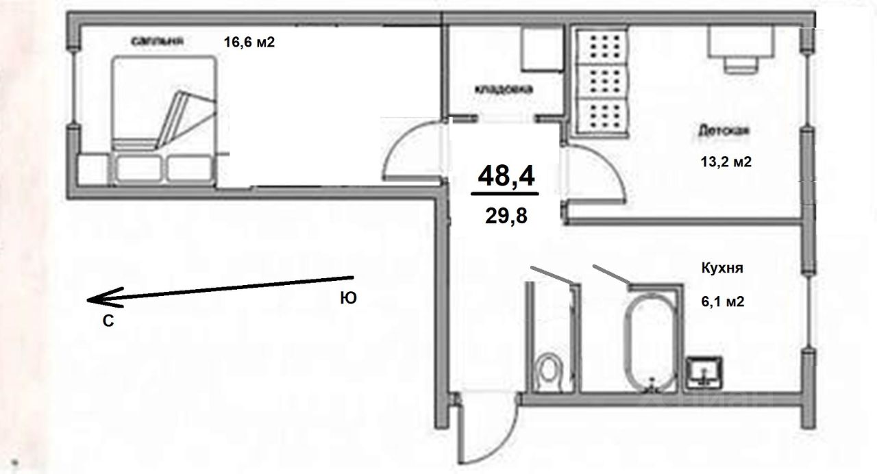
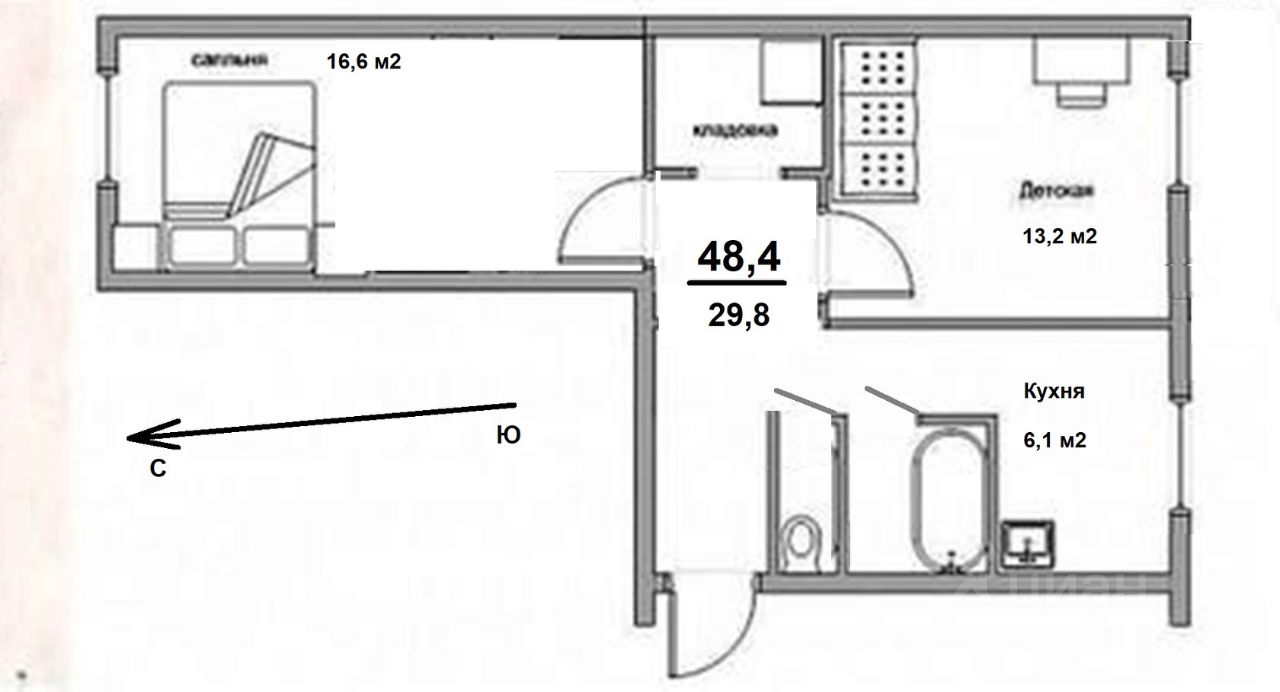
Просторная 2к квартира, распашонка в кирпичном доме. Ремонт косметический, гардеробная, пластиковые окна, стальная дверь, раздельный санузел. Квартира продается со всей мебелью и техникой.
Очень удачное расположение дома: Автостанция Истра и станция электрички в 400 метрах, рядом с домом: детский сад, школа, детская площадка, множество сетевых магазинов.
По документам: в собственности более 5 лет, один взрослый собственник, без обременений.
Можно купить в ипотеку.





















