Если цена в объявлении изменится, мы сразу сообщим вам об этом на электронную почту.
Нажимая «Подписаться», вы соглашаетесь с правилами.
продам дом, Гольфстрим кп29 900 000 ₽
18 сен
Дата публикации объявления
Обн. 24 окт
Дата обновления объявления
Топ
115 847 ₽/м²
Чистая продажа
Термин "Чистая продажа" означает, что в квартире никто не прописан или
есть куда выписаться и вывезти вещи. Это лучший вариант для покупателя.
Вероятность срыва сделки минимальна.
Этажей2
Площадь участка8,55 соток
Общая площадь258,1 м2
ЭлектричествоЕсть
Газоснабжениецентральное
НОВЫЙ дом в коттеджном посёлке ГОЛЬФСТРИМ по Пятницкому шоссе 38 км от МКАД
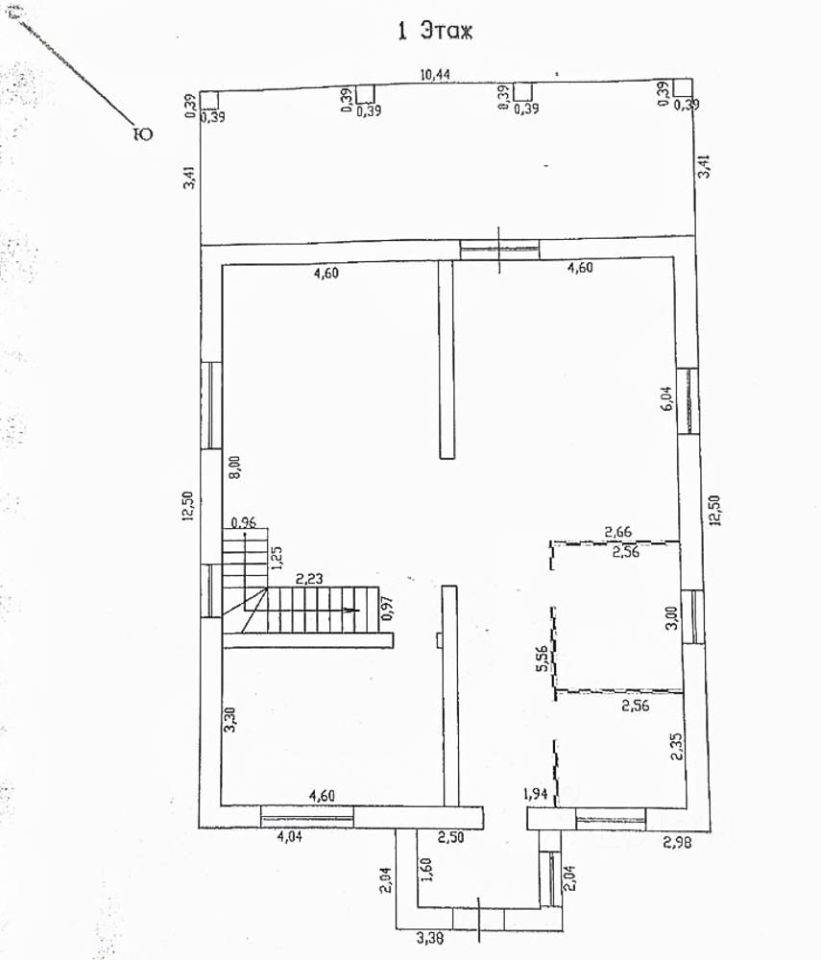
Современный 2-х этажный коттедж 258.1 м2: 1 этаж просторная кухня-гостиная с выходом на закрытую террасу, спальня/кабинет, санузел, котельная 2 этаж хозяйская спальня с гардеробной, 2 спальни, большая ванная комната. Чердачное помещение со скрытой лестницей - удобное пространство для хранения. Выполнен дизайнерский ремонт по индивидуальному дизайн-проекту, удобная и функциональная планировка идеально подойдёт для любого состава семьи. Установлена кухня и бытовая техника. В едином стиле выполнено освещение во всём доме, установлены кондиционеры. Большие и светлые комнаты, грамотное расположение. Закрытая, остеклённая терраса - это комфортный отдых круглый год.
НОВЫЙ дом в коттеджном посёлке ГОЛЬФСТРИМ по Пятницкому шоссе 38 км от МКАД
Современный 2-х этажный коттедж 258.1 м2: 1 этаж просторная кухня-гостиная с выходом на закрытую террасу, спальня/кабинет, санузел, котельная 2 этаж хозяйская спальня с гардеробной, 2 спальни, большая ванная комната. Чердачное помещение со скрытой лестницей - удобное пространство для хранения. Выполнен дизайнерский ремонт по индивидуальному дизайн-проекту, удобная и функциональная планировка идеально подойдёт для любого состава семьи. Установлена кухня и бытовая техника. В едином стиле выполнено освещение во всём доме, установлены кондиционеры. Большие и светлые комнаты, грамотное расположение. Закрытая, остеклённая терраса - это комфортный отдых круглый год. Вам осталось поставить свою мебель и создать свой уют для счастливого и комфортного проживания!
Ухоженный участок 8.55 соток ровный, правильной формы, уложен качественный рулонный газон, выложена тротуарной плиткой парковка у дома на 2-4 автомобиля, установлены автоматические ворота, участок огорожен забором - металлопрофиль.
О ДОМЕ: Материал строительства - газобетонные блоки, облицовочный кирпич, цоколь - натуральный камень Фундамент - монолитная плита 250 мм Перекрытия - 1-2 этаж - железобетонные плиты, 2 этаж-чердак - деревянные, 20 см утепление Кровля - металлочерепица Материал полов - керамогранит - система тёплых полов, ламинат Высота потолков - 1 этаж - 2.88 м, 2 этаж - 2.72 м.
Коттеджный посёлок Гольфстрим с собственной набережной для прогулок всей семьёй, занятий спортом, ловли рыбы и отдыха. Прогулочные дорожки, беседки для пикника, мангалы, спортивные и детские площадки, собственный пляж, пристань - это всё в пешей доступности только для жителей посёлка. А также, в доступности 15 минут на велосипеде Истринское водохранилище с чудесным пляжем, кафе, ресторанами, пристанью для лодок и катеров! Восхитительное место для отдыха от городской суеты - это нужно обязательно увидеть и почувствовать!
Инфраструктура: супермаркеты Дикси, Пятёрочка, Чижик, ВкусВилл, частный детский сад, гимназия Мастер-класс- частная школа-пансион, ресторан Духанино-4. Спортивный комплекс с бассейном, сауной , тренажёрным залом, универсальным спортивным залом. Конно-спортивная школа. г. Истра - с городской насыщенной и культурной инфраструктурой для всех - 15 минут на автомобиле.
Посёлок находится под круглосуточной охраной, въезд через КПП и шлагбаум, установлено видеонаблюдение, асфальтированные широкие дороги.
Транспортная доступность: удобный выезд на Новорижское, Волоколамское, Пятницкое шоссе, ЦКАД. В 20 км - станция МЦД-3 Зеленоград-Крюково. До Истры 15 минут на автомобиле. Прекрасный дом в отличном состоянии в замечательном месте!