Если цена в объявлении изменится, мы сразу сообщим вам об этом на электронную почту.
Нажимая «Подписаться», вы соглашаетесь с правилами.
продам дом, Рига Парк кп, 3120 000 000 ₽
24 окт
Дата публикации объявления
Обн. 28 дек
Дата обновления объявления
Топ
356 612 ₽/м²
Чистая продажа
Термин "Чистая продажа" означает, что в квартире никто не прописан или
есть куда выписаться и вывезти вещи. Это лучший вариант для покупателя.
Вероятность срыва сделки минимальна.
Этажей2
Площадь участка15 соток
Общая площадь336,5 м2
Материал домакирпич
ЭлектричествоЕсть
Газоснабжениецентральное
Новый, готовый к проживанию дом в тихом, лесном поселке КП Рига Парк, на берегу реки Истра, всего в 25-30 минутах езды от Москвы. Развитая инфраструктура вблизи посёлка, включает в себя всё что нужно для комфортной жизни!
Основой дома служат кирпичные стены и монолитные перекрытия, а качество отделки и материалов вас приятно удивит. В дом заведены все центральные коммуникации, установлена канальная система кондиционирования.
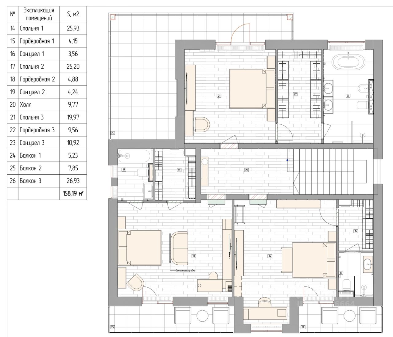
Планировка дома придётся по душе всем членам вашей семьи, так как три основные спальни на втором этаже имеют собственные санузлы и гардеробные.
Новый, готовый к проживанию дом в тихом, лесном поселке КП Рига Парк, на берегу реки Истра, всего в 25-30 минутах езды от Москвы. Развитая инфраструктура вблизи посёлка, включает в себя всё что нужно для комфортной жизни!
Основой дома служат кирпичные стены и монолитные перекрытия, а качество отделки и материалов вас приятно удивит. В дом заведены все центральные коммуникации, установлена канальная система кондиционирования.
Планировка дома придётся по душе всем членам вашей семьи, так как три основные спальни на втором этаже имеют собственные санузлы и гардеробные. На первом этаже расположена гостевая спальня, просторная кухня - гостиная с выходом на террасу, гостевой санузел и просторная прихожая с гардеробной и постирочной Участок 15 соток правильной формы, с деревьями и высаженным газоном. Дополнительно залит фундамент для бани или любого другого строения. Дом расположен таким образом, чтобы сохранилась приватность от соседей. Также есть навес на два автомобиля, который в случае необходимости можно переделать в тёплый гараж.
Звоните и добавляйте объявление в избранное, будем рады рассказать подробнее о доме и оперативно организовать показ.