Термин "Чистая продажа" означает, что в квартире никто не прописан или
есть куда выписаться и вывезти вещи. Это лучший вариант для покупателя.
Вероятность срыва сделки минимальна.
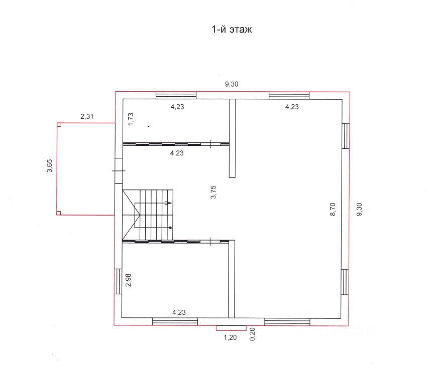
Этажей2
Площадь участка8 соток
Общая площадь150 м2
ЭлектричествоЕсть
Газоснабжениецентральное
Продаю новый коттедж 150 м2 с земельным участком площадью 8 соток - 38 км от МКАД. Дом 2-этажный с удобной планировкой из газобетонных блоков автоклавного твердения (Bonolin), без внутренней отделки (возможна отделка под ключ). В доме 5 комнат (42 кв.м кухня-гостиная, 4 спальни от 14 кв.м до 17 кв.м, 2 с/у), электричество 15 кВт, вода и канализация (септик ЮНИЛОС) заведены в дом, магистральный газ по границе. По периметру участка забор с воротами и калиткой. Дом зарегистрирован, присвоен адрес и номер (прописка). Хороший подъезд круглый год. Асфальтированный подъезд до участка. Дом расположен в живописном месте с огороженной территорией. В районе 5 км находятся школа, д/сад, магазины, отделение Сбербанка, медпункт, ж/д станция Морозки, горнолыжный клуб Л.
Продаю новый коттедж 150 м2 с земельным участком площадью 8 соток - 38 км от МКАД. Дом 2-этажный с удобной планировкой из газобетонных блоков автоклавного твердения (Bonolin), без внутренней отделки (возможна отделка под ключ). В доме 5 комнат (42 кв.м кухня-гостиная, 4 спальни от 14 кв.м до 17 кв.м, 2 с/у), электричество 15 кВт, вода и канализация (септик ЮНИЛОС) заведены в дом, магистральный газ по границе. По периметру участка забор с воротами и калиткой. Дом зарегистрирован, присвоен адрес и номер (прописка). Хороший подъезд круглый год. Асфальтированный подъезд до участка. Дом расположен в живописном месте с огороженной территорией. В районе 5 км находятся школа, д/сад, магазины, отделение Сбербанка, медпункт, ж/д станция Морозки, горнолыжный клуб Л. Тягачева, Сорочаны, парк Яхрома, Волен, парк Лисья нора, Экстрим-парк, гольф-клуб, два водохранилища и канал им. Москвы. 500 метров до автобусной остановки до ж/д станция Морозки, Прекрасное тихое место для загородного отдыха и постоянного проживания. Все документы готовы для сделки.