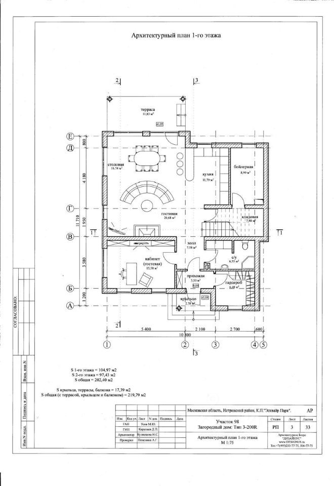
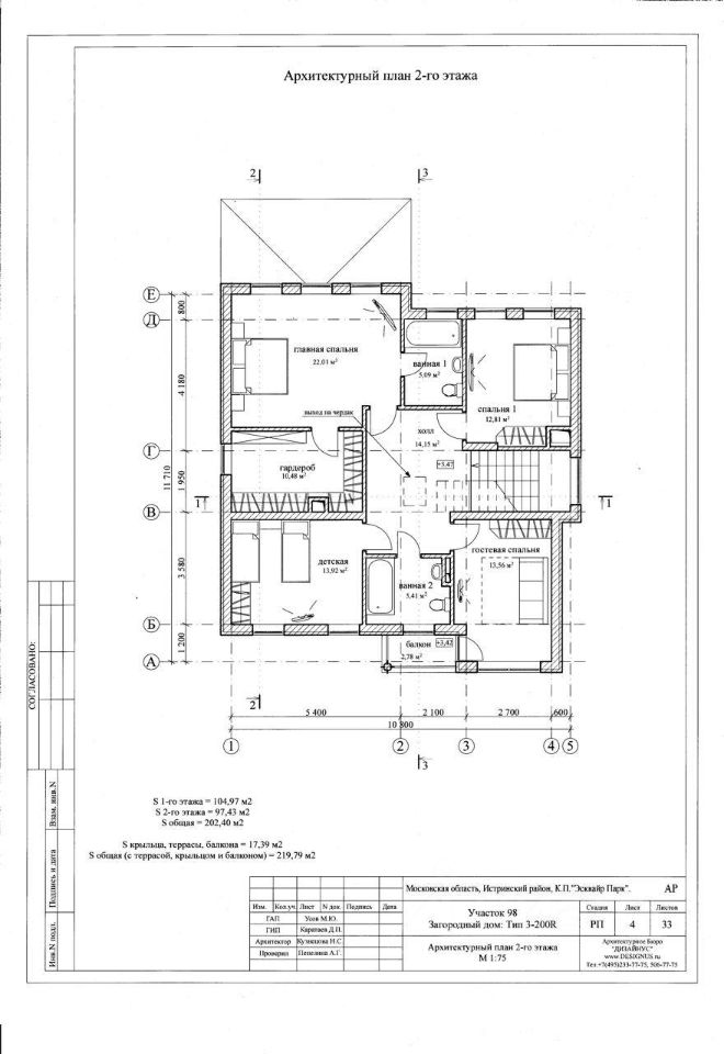
В охраняемом коттеджном посёлке Эсквайр Парк на 10 сотках около реки, продаётся коттедж под отделку с возможностью реализовать все свои дизайнерские идеи.
Все центральные коммуникации, магистральный газ, канализация, вода, эл-во подключены к дому.
Дом построен из кеpaмичeского кирпича.
В посёлке широкие асфальтированные дороги, охрана, уличное освещение, детская площадка, прогулочные зоны с выходом к реке.
Рядом вся инфраструктура г Истра.
























