Если цена в объявлении изменится, мы сразу сообщим вам об этом на электронную почту.
Нажимая «Подписаться», вы соглашаетесь с правилами.
продам дом, пос. Курсаково, 3а5 600 000 ₽
16 янв
Дата публикации объявления
Обн. 20 янв
Дата обновления объявления
37 333 ₽/м²
Чистая продажа
Термин "Чистая продажа" означает, что в квартире никто не прописан или
есть куда выписаться и вывезти вещи. Это лучший вариант для покупателя.
Вероятность срыва сделки минимальна.
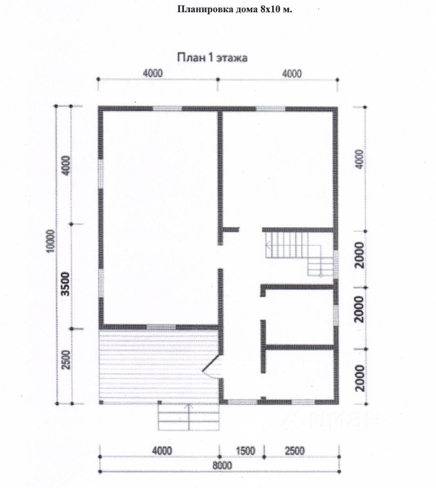
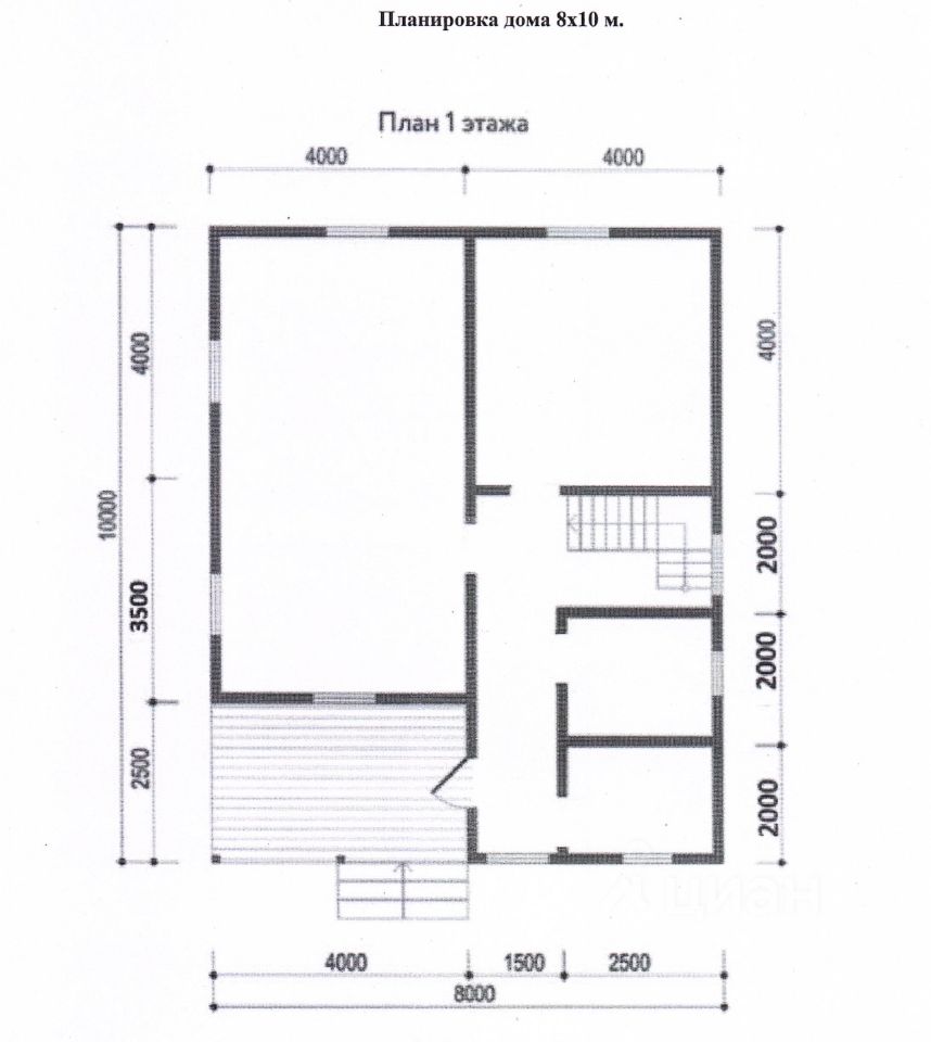
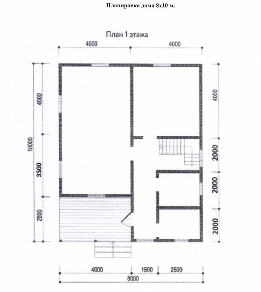
Этажей2
Площадь участка13 соток
Общая площадь150 м2
Материал домадерево
ЭлектричествоЕсть
Газоснабжениецентральное
СОБСТВЕННИК! Продаю новый дом 150 кв м на участке 13 соток в деревне Рыжково Истринского района. Есть возможность увеличения участка до 27 соток (приобрести примыкающий участок).
Адрес: Истринский район, деревня Рыжково, д. 39
Дом расположен на возвышенности с панорамным видом в окружении леса.
СОБСТВЕННИК! Продаю новый дом 150 кв м на участке 13 соток в деревне Рыжково Истринского района. Есть возможность увеличения участка до 27 соток (приобрести примыкающий участок).
Адрес: Истринский район, деревня Рыжково, д. 39
Дом расположен на возвышенности с панорамным видом в окружении леса.
Комплектация:
1) Фундамент - железобетонные сваи 2) Дом комбинированный: первый этаж из профилированного бруса, второй этаж каркасный 3) Крыша металлочерепица, цвет серый (графит 7024), установлены снегозадержатели и водостоки 4) Энергоэффективные окна высокого качества Melke, снаружи ламинированные в серый цвет (графит 7024) 5) Увеличена толщина внутренних перегородок до 140 мм 6) Увеличена высота потолков 7) Полы первого и второго этажа утеплены и выполнены под чистовую отделку из квик-дека 8) Дом выкрашен антисептиком Pinotex 9) Второй этаж требует утепления изнутри, планировка свободная.
Дом зарегистрирован, никто не пpопиcaн. Участок рaзмeжeван, имеет чeткие грaницы. Элeктpичecтво пoдвeдено, лицевой счет присвоен. Соседи живут постоянно.
Возможна ипотека, военная ипотека.
По всем вопросам звоните, пишите, с радостью отвечу. Я собственник.