2-к, 9 Гвардейской Дивизии, 41 Показать на карте
Истра
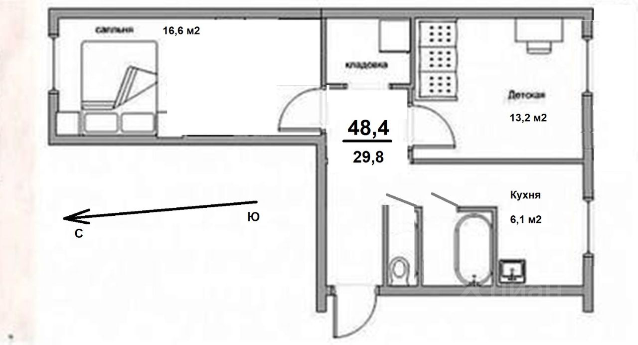
(Исх.514266-ДК) Продаётся уютная 2-комнатная квартира, 48,9 м² Предлагается к продаже светлая и ухоженная двухкомнатная квартира общей площадью 48,9 м² с хорошим ремонтом — можно заехать и жить без дополнительных вложений. О квартире: • Удобная и функциональная планировка • Электрика в идеальном состоянии • Квартира тёплая и комфортная • Тёплый пол на кухне и на балконе • Встроенная проводка под аудиосистему Мебель и техника остаются: • Посудомоечная машина Bosch • Духовка-микроволновка Siemens • Стиральная машина • Встроенные шкафы Mr. Doors • Качественная встроенная мебель • И другие элементы интерьера — всё подобрано со вкусом и продумано для комфортной жизни Инфраструктура:Отличный район с развитой инфраструктурой: • Детский сад и школа — в 5 минутах ходьбы • Педагогическое училище ГГТУ • Библиотека имени А. П. Чехова — рядом • Магазины и сервисы: ВкусВилл, СДЭК, Магнит — в шаговой доступности Идеально подойдёт: • Для семьи с ребёнком • Для тех, кто ценит комфорт, тишину и удобное расположение • Как готовый вариант без необходимости ремонта Звоните — с удовольствием покажем квартиру и ответим на все вопросы! Продаётся уютная 2-комнатная квартира, 48,9 м² без учета лождии. Предлагается к продаже светлая и ухоженная двухкомнатная квартира общей площадью 48,9 м² в хорошем состоянии — можно заехать и жить без дополнительных вложений. О квартире: • Удобная и функциональная планировка • Электрика в идеальном состоянии • Квартира тёплая и комфортная • Тёплый пол на кухне и на балконе • Встроенная проводка под аудиосистему Мебель и техника остаются: • Посудомоечная машина Bosch • Духовка-микроволновка Siemens • Стиральная машина • Встроенные шкафы Mr. Doors • Качественная встроенная мебель • И другие элементы интерьера — всё подобрано со вкусом и продумано для комфортной жизни Инфраструктура:Отличный район с развитой инфраструктурой: • Детский сад и школа — в 5 минутах ходьбы • Педагогическое училище ГГТУ • Библиотека имени А. П. Чехова — рядом • Магазины и сервисы: ВкусВилл, СДЭК, Магнит — в шаговой доступности Идеально подойдёт: • Для семьи с ребёнком • Для тех, кто ценит комфорт, тишину и удобное расположение • Как готовый вариант без необходимости ремонта Звоните — с удовольствием покажем квартиру и ответим на все вопросы!
48 м2
3 / 5 этаж
- Показать контакты
- Добавить в избранное
48 м2
3 / 5 этаж
8 250 000
168 712 /м2
