Таунхаус, 3-я Показать на карте
Британика кп
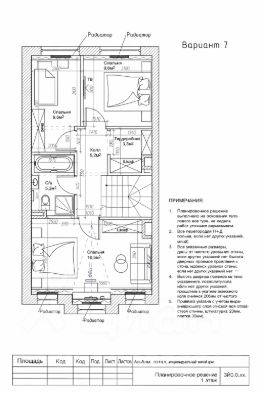
Комфортная жизнь в таунхаусе с дизайнерским ремонтом ''под ключ'' в КП Британика всего в 30 минутах от МКАДВ камерном охраняемом коттеджном поселке Британика продается таунхаус с дизайнерским ремонтом в английском стиле ''под ключ''. В отделке использован натуральный массив дуба, камень, английские обои/краска, натуральные ткани, премиальные эко материалы, итальянская сантехника. Таунхаус укомплектован мебелью Bo Concept и всей необходимой для комфортного проживания бытовой техникой. Вам останется только перевезти свои вещи и наслаждаться тишиной и размеренной жизнью в поселке! Таунхаус обеспечен всеми центральными коммуникациями. Особенность построенных таунхаусов - у них нет общих стен с соседями. Вам гарантирована тишина! Планировка: 1 этаж: прихожая, техническое помещение с многоступенчатой системой водоочистки и бойлером на 200 л, просторный зал-кухня, гардеробная, санузел, выход на террасу из натуральной лиственницы и участок (2,2 сотки) . На участке летняя кухня, газовый гриль Napoleon Rogue-525 SE. 2 этаж: спальня с гардеробной, детская со встроенным шкафом, большая ванная и санузел. 3 этаж: свободная планировка, можно использовать как рабочий кабинет, зону отдыха/кинотеатр или гостевую комнату. Парковка на 2 машины прямо у входа. В посёлке: 2 детских площадки, прогулочные зоны, футбольное /теннисное поле , большой фонтан, мобильная кофейня, большой круглогодичный шатер, есть отдельный выход в лес с ЭКО тропой для прогулок. В поселке регулярно устраиваются праздники , мастер-классы для детей и взрослых. Классное дружное сообщество жителей по различным интересам (группы в вотсап) . В 10 - 15 минутах на машине вся необходимая социальная инфраструктура. В поселок осуществляются все возможные виды доставок. Платежи за дом и пользование посёлком, включая членские взносы и коммунальные платежи примерно 9000 в месяц. Поселок имеет прекрасное расположение: удобный выезд без пробок сразу на ЦКАД и Новорижское шоссе. До МКАД 30 минут. Звоните и записывайтесь на просмотр, чтобы лично ощутить атмосферу поселка и оценить комфорт вашего будущего жилья.
150 м2
2 этажа
Кирпич
- Показать контакты
- Добавить в избранное
150 м2
2 этажа
Кирпич
43 000 000
286 667 /м2
