2-к, Юбилейная, 4 Показать на карте
Истра
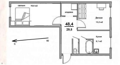
Свободная продажа 2к квартиры рядом со станцией Истра. Квартира сдается в аренду и приносит высокий доход!Адрес: Московская область, Истринский район, г. Истра, ул. Юбилейная 4.Просторная 2к квартира, распашонка в кирпичном доме. Ремонт косметический, гардеробная, пластиковые окна, стальная дверь, раздельный санузел. Квартира продается со всей мебелью и техникой. Арендатор готов арендовать квартиру и после продажи.Очень удачное расположение дома: Автостанция Истра и станция электрички в 400 метрах, рядом с домом: детский сад, школа, детская площадка, множество сетевых магазинов. По документам: в собственности более 5 лет, один взрослый собственник, без обременений.Можно купить в ипотеку.
48 м2
1 / 5 этаж
Кирпич
- Показать контакты
- Добавить в избранное
48 м2
1 / 5 этаж
Кирпич
6 100 000
126 033 /м2
